PORTFOLIO
RESUME
HOME
Kaywon Naderi
PORTFOLIO
RESUME
HOME

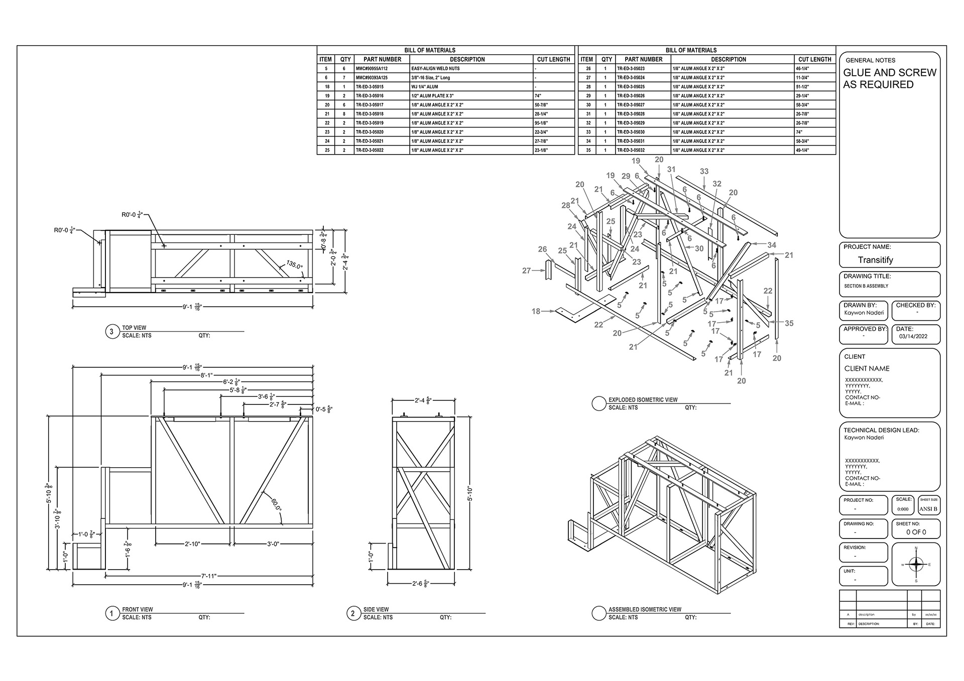
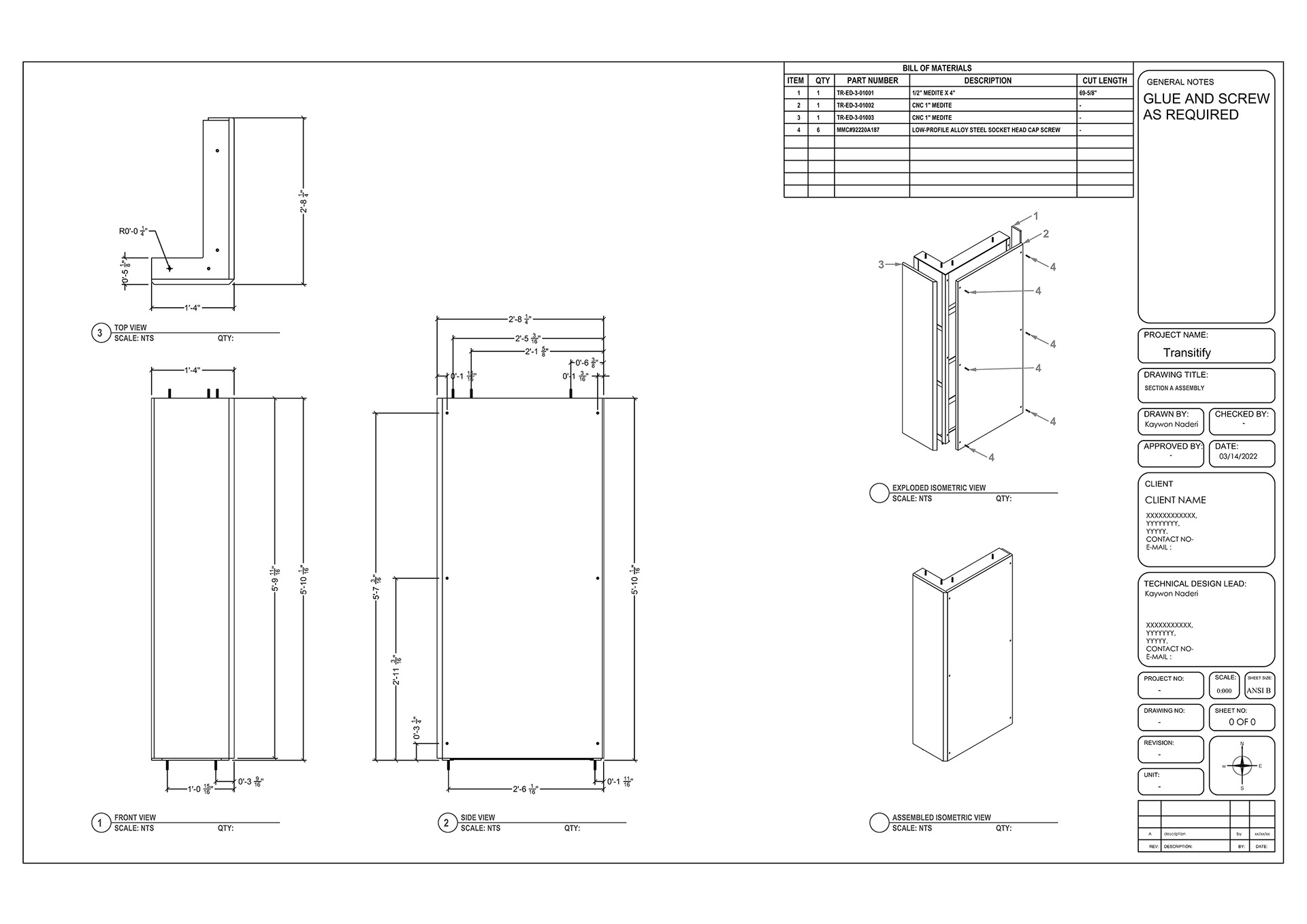
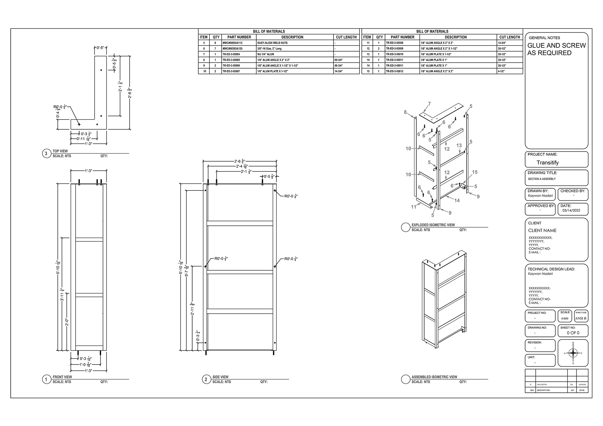
Transitify_Shop Drawing

↑Back to Top